Áttekintés
- 5 Szoba
- 4 Hálószoba
- 118 m2
- Építés éve: 2026
ÚJÉPÍTÉSŰ CSALÁDI HÁZ SIÓFOK ARANYPARTJÁN – 100 MÉTERRE A SZABADSTRANDTÓL
Siófok egyik legkedveltebb részén, az Aranyparton, egy modern, lapostetős, prémium anyagokból épülő önálló családi ház kerül kivitelezésre. A projekt különösen közel áll a szívünkhöz, hiszen minden részletét tudatosan, szakmai igényességgel terveztük meg.
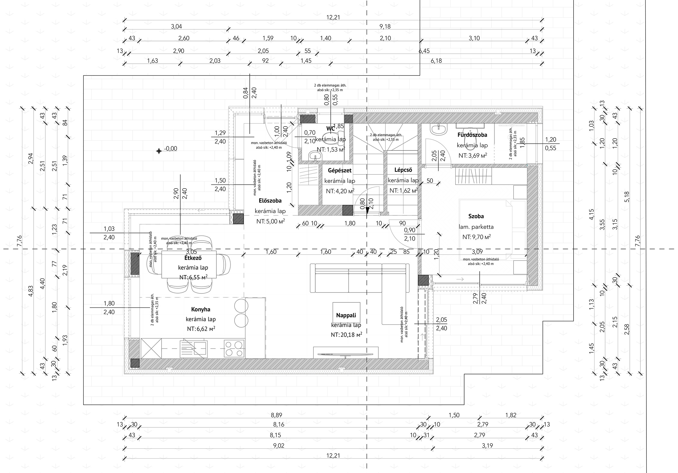
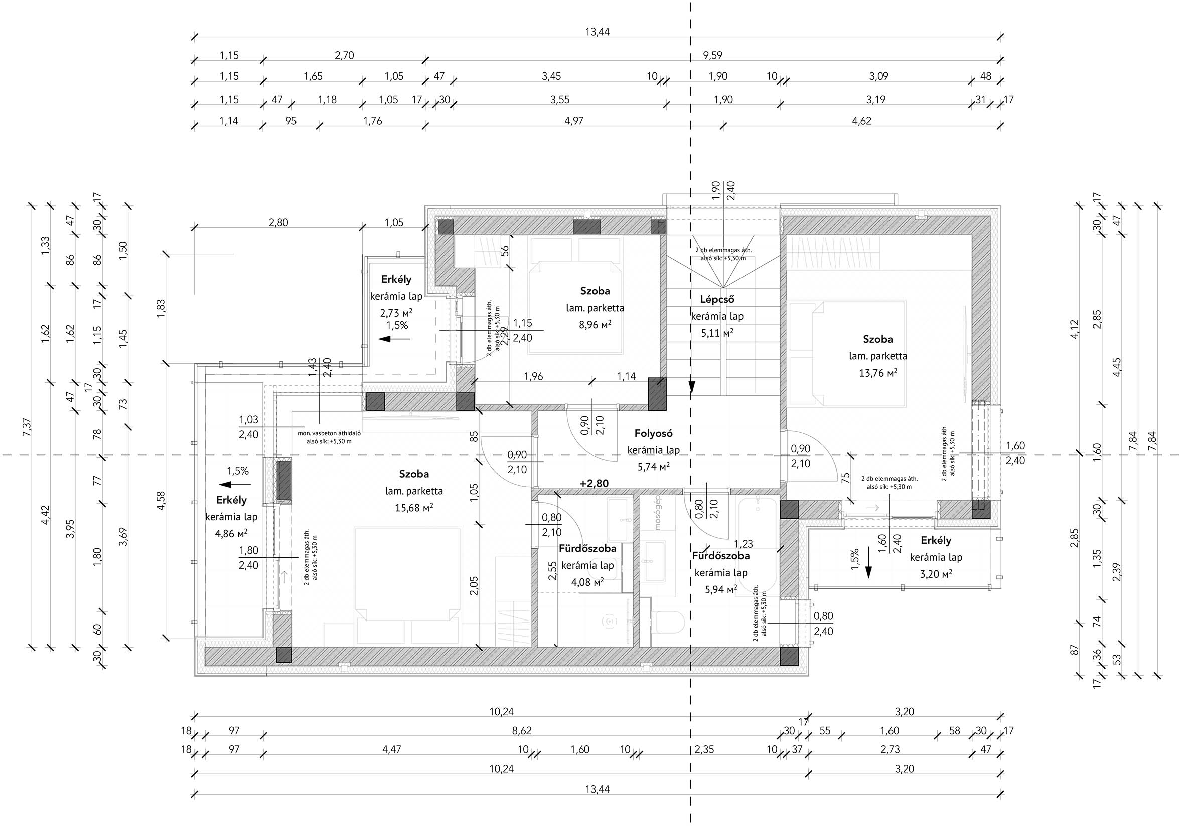
A ház nettó 118m² hasznos alapterülettel, 4 hálószobával, három fürdőszobával és tágas amerikai konyhás nappalival került kivitelezésre. Az emeleten található két hálószobából gyönyörű Balatoni panoráma tárul elénk, amely különleges hangulatot ad a mindennapoknak. Az építkezés jelenleg a szerkezetkész állapot közelében jár, a várható műszaki átadás időpontja: 2026.10.10.
A megjelenített vételár az általunk előre meghatározott műszaki tartalomra vonatkozik. Egyedi igények esetén a végső ár természetesen módosulhat – akár pozitív, akár negatív irányba.
Elhelyezkedés
Az ingatlan egy szerencsés saroktelken, az átmenőforgalomtól mentes Fiumei utcában található, így a lakók nyugalma garantált, miközben minden elérhető pár perc alatt.
- A 7 km hosszú Aranyparti szabadstrand mindössze 100 méterre van.
- A közelben található a hamarosan megújuló Galerius Fürdő, amely 150 méteres távolságra található és egész évben üzemel.
- A környéken több kiváló étterem, kávézó, szolgáltatás található.
- Az M7-es autópályának köszönhetően Siófok kényelmesen, gyorsan megközelíthető.
Ez a lokáció ritkaság: csendes, biztonságos, mégis a Balaton és a város pezsgése egy karnyújtásnyira van.
Az ingatlan főbb jellemzői
Telek és épület:
- Telekterület: 351 m²
- Önálló családi ház
- Modern, lapostetős építészeti kialakítás
- Összes nettó hasznos alapterület: 118 m²
- 4 hálószoba (1 a földszinten, 3 az emeleten)
- 3 erkély + 2 terasz
Műszaki tartalom (kiemelt elemek):
- Alumínium 3 rétegű üvegezésű nyílászárók
- Központi hőszivattyús fűtési-hűtési rendszer
- Padlófűtés és mennyezet hűtés fűtés
- Kőzetgyapot és EPS hőszigetelés
- Modern villamos hálózat túlfeszültség-védelemmel
- Riasztórendszer előkészítés
- Elektromos zsalúzia
Parkolás:
- Két gépkocsinak telken belüli beállási lehetőség (nem fedett)
Miért különleges ez a projekt?
✓ Minden részletében modern és időtálló
✓ Prémium anyaghasználat – alumínium nyílászárók, hőszivattyú, minőségi hőszigetelés
✓ Tökéletes családi elrendezés: 4 hálószoba
✓ Ritka lokáció: csend, vízközel, szolgáltatások 1 perc sétára
✓ Egyedi igények esetén a műszaki tartalom személyre szabható












